REQUEST A TOUR If you would like to see this home without being there in person, select the "Virtual Tour" option and your agent will contact you to discuss available opportunities.
In-PersonVirtual Tour

$ 15
New
527 Shepherd Drive Garland, TX 75042
0.67 Acres Lot
UPDATED:
Key Details
Property Type Commercial
Sub Type Industrial
Listing Status Active
Purchase Type For Rent
Subdivision Shepherd Indust Park
MLS Listing ID 21164997
Total Fin. Sqft 12000
Year Built 1962
Lot Size 0.670 Acres
Acres 0.67
Property Sub-Type Industrial
Property Description
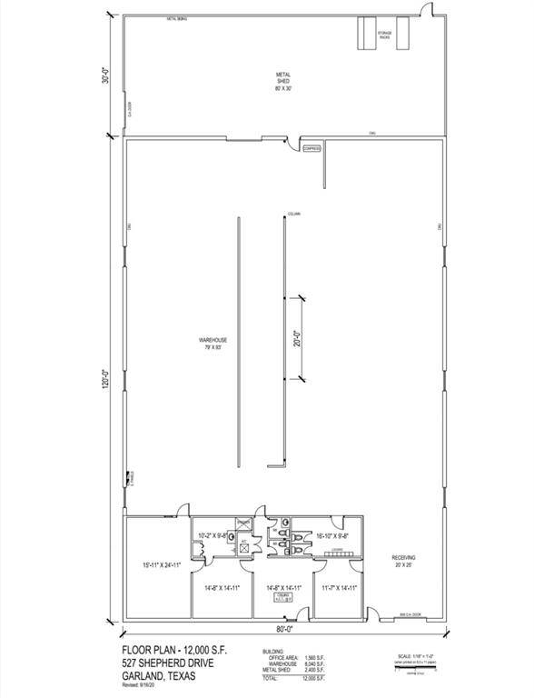
527 Shepherd Drive in Garland, Texas, this industrial-zoned commercial property offers over 12,000 square feet of fully climate-controlled warehouse space, ideal for a wide range of industrial, distribution, manufacturing, or flex uses.
The building features a well-appointed office component, including a reception area, conference room, and a large break room, providing an efficient layout that supports both operational and administrative functions. The warehouse is fully climate controlled and equipped with three-phase heavy power, making it suitable for users with higher electrical demands.
Zoned for industrial use, the property is well positioned for owner-users or tenants seeking a versatile facility with robust infrastructure in an established Garland industrial corridor.
The building features a well-appointed office component, including a reception area, conference room, and a large break room, providing an efficient layout that supports both operational and administrative functions. The warehouse is fully climate controlled and equipped with three-phase heavy power, making it suitable for users with higher electrical demands.
Zoned for industrial use, the property is well positioned for owner-users or tenants seeking a versatile facility with robust infrastructure in an established Garland industrial corridor.
Location
State TX
County Dallas
Zoning Industrial
Direction See GPS
Interior
Heating Central, Electric
Cooling Central Air
Flooring Carpet, Ceramic Tile, Concrete
Heat Source Central, Electric
Exterior
Utilities Available City Sewer, City Water, Concrete, Curbs, Electricity Available, Electricity Connected
Roof Type Composition,Flat
Garage No
Building
Foundation Pillar/Post/Pier, Slab
Structure Type Aluminum Siding,Block,Brick,Concrete
Others
Virtual Tour https://www.propertypanorama.com/instaview/ntreis/21164997

©2026 North Texas Real Estate Information Systems.
Listed by Jimmy Ulik • Exclusive Realty Group
School and business data provided by Attom Data.






