
501-503 S Mockingbird Lane Denton, TX 76205
8 Beds
6 Baths
7,405 Sqft Lot
UPDATED:
Key Details
Property Type Multi-Family
Sub Type Duplex
Listing Status Active
Purchase Type For Sale
Subdivision Eagle Cove
MLS Listing ID 21085353
Bedrooms 8
Full Baths 4
Half Baths 2
HOA Fees $600/ann
HOA Y/N Mandatory
Total Fin. Sqft 4046
Year Built 2025
Lot Size 7,405 Sqft
Acres 0.17
Property Sub-Type Duplex
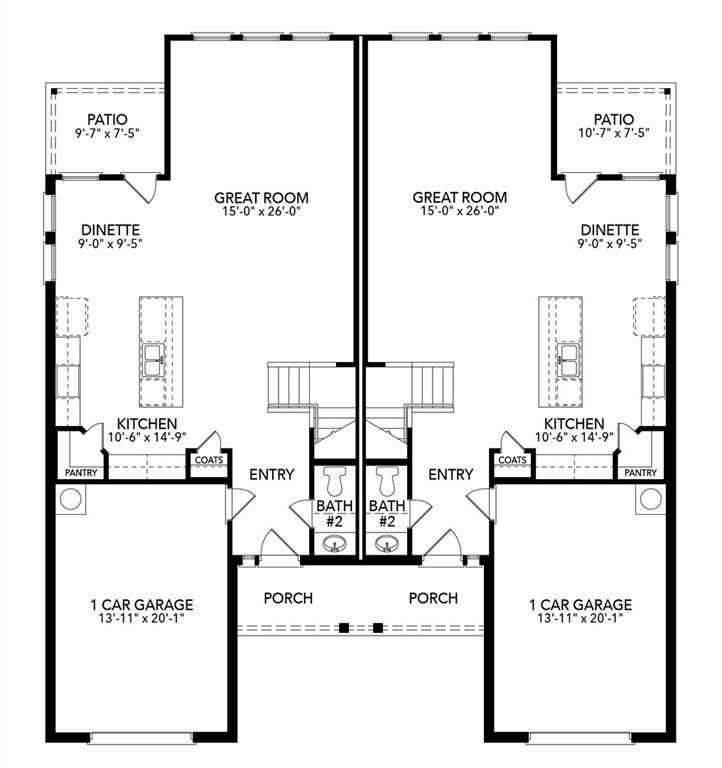
Property Description
Location
State TX
County Denton
Direction From Loop 828, turn onto Duchess Dr. Community will be on your left.
Interior
Interior Features Decorative Lighting, Kitchen Island, Open Floorplan, Pantry, Walk-In Closet(s)
Heating Central, Electric
Cooling Ceiling Fan(s), Central Air
Flooring Carpet, Laminate, Tile
Appliance Dishwasher, Disposal, Electric Range, Microwave
Heat Source Central, Electric
Exterior
Exterior Feature Covered Patio/Porch, Lighting, Private Yard
Garage Spaces 2.0
Fence Back Yard, Fenced
Utilities Available City Sewer, City Water
Roof Type Composition
Total Parking Spaces 2
Garage Yes
Building
Story Two
Foundation Slab
Level or Stories Two
Structure Type Brick
Schools
Elementary Schools Rivera
Middle Schools Bettye Myers
High Schools Ryan H S
School District Denton Isd
Others
Virtual Tour https://www.propertypanorama.com/instaview/ntreis/21085353







